|
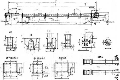
MS埋刮板輸送機 埋刮板輸送機是輸送粉塵狀、小顆粒及小塊狀等物料的連續運輸設備,可以水平、傾斜輸送,輸送物料時,刮板鏈條全埋在物料之中。本機具有結構簡單,使用可靠,造價低廉,輸送距
|
埋刮板輸送機是輸送粉塵狀、小顆粒及小塊狀等物料的連續運輸設備,可以水平、傾斜輸送,輸送物料時,刮板鏈條全埋在物料之中。本機具有結構簡單,使用可靠,造價低廉,輸送距離長,并能輸送灼熱物料等優點,被廣泛應用于建材、化工、冶金、煤炭、礦山、機械等部門。
埋刮板輸送機技術參數表:
|
埋刮板輸送機型號 |
MGS20 |
MGS25 |
MGS32 |
MGS40 |
|
|
物料容量(t/m3) |
0.4-0.8 |
0.4-0.8 |
0.4-0.8 |
0.4-0.8 |
|
|
輸送能力(m3/h) |
50 |
60 |
80 |
120 |
|
|
最大輸送長度(m) |
40 |
40 |
40 |
60 |
|
|
安全傾角 |
0-15度 |
0-15度 |
0-15度 |
0-15度 |
|
|
刮板鏈條 |
刮板間距(mm) |
200 |
200 |
200 |
200 |
|
鏈條間距(mm) |
100 |
100 |
100 |
100 |
|
|
滾子直徑(mm) |
28 |
28 |
28 |
28 |
|
|
鏈條形式 |
TG100 |
TG100 |
TG100 |
TG100 |
|
|
每米重量(KG) |
7.8 |
12.2 |
35 |
43.2 |
|
結構形式
